leadforensics
Preloader

Features

  • Vehicle Specific side by side dual storage drawer series mounting package for Chevrolet Tahoe
  • Works with standard K9 vehicle insert (K9-C26 & K9-C26-B)
  • Includes Raised Dual Drawer Base Mount (SBX-5023)
  • A Large Dual Drawer with push-button combination lock (SBX-2002)
  • And a Small Dual Drawer with push-button combination lock (SBX-2004)
  • Provides safe and secure mounting of equipment in utility vehicle cargo areas
  • Raises drawers 6” above the floor
  • Uses OEM mount points for a no-drill solution, the tapping of two holes required
  • Large Drawer with 26” x 36” footprint and Small Drawer with 15.5” x 36” footprint
  • Heavy-duty push-button combination lock and reinforced drawer face
  • Positive latching – allows drawers to stay locked, even when parked on an incline
  • Rear venting, knock-out section for wiring pass through, and fan mounts allow for equipment and accessory mounting
  • Includes wide electronics mounting topper for drawer, with 46" x 20" footprint and a lockable, slide-off lid, designed to fit electronic equipment up to 5"H (SBX-3008)
  • Includes a Dual Drawer basic flat topper that supports the electronic box mount (SBX-3009)
  • Includes all hardware to assemble and mount in vehicle
  • Includes electronics hat bracket with two hand knobs and two bolts for easy installation and removal
  • Includes bracket for mounting of electronics under storage box with available space of 33.5” x 11.6” x 10” (height)
  • Requires permanent alteration of OE rear storage bin
  • Packages are complete and must be ordered as-is

PRODUCT SPECIFICATIONS:
Overall Dimensions:46" Width x 25" Height x 36" Depth
Product Weight:244 lbs.
Gross weight:255 lbs

Resources

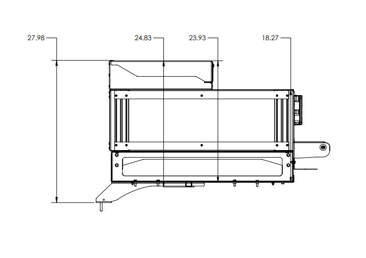
Side View Depth Measurements (PNG)
Side View Depth Measurements (PNG)
3DR (jpg)
3DR (jpg)
Isoview (jpg)
Isoview (jpg)
Chevy Tahoe Sales Sheet
Chevy Tahoe Sales Sheet
Chevy Tahoe Brochure
Chevy Tahoe Brochure

Application Gallery

Compatibility

Chevrolet Tahoe
Chevrolet Tahoe

Related products

  • Side-by-Side Dual Drawer Base Mount for 2025-2026 Chevrolet Tahoe
    SBX-5023
    MSRP $1,100.00
    Side-by-Side Dual Drawer Base Mount for 2025-2026 Chevrolet Tahoe
    View product
  • Standard K9 Transport System For 2021-2026 Chevrolet Tahoe – Black
    K9-C26-B
    MSRP $5,118.00
    Standard K9 Transport System For 2021-2026 Chevrolet Tahoe – Black
    View product
  • Dual Drawer – Basic Flat Topper
    SBX-3009
    MSRP $345.00
    Dual Drawer – Basic Flat Topper
    View product
  • Wide Electronics Mounting Topper for Modular Drawers
    SBX-3008
    MSRP $1,199.00
    Wide Electronics Mounting Topper for Modular Drawers
    View product
  • Large Dual Drawer with Push-Button Combination Lock
    SBX-2002
    MSRP $2,150.00
    Large Dual Drawer with Push-Button Combination Lock
    View product
  • Standard K9 Transport System For 2021-2026 Chevrolet Tahoe – White
    K9-C26
    MSRP $5,118.00
    Standard K9 Transport System For 2021-2026 Chevrolet Tahoe – White
    View product
  • Small Dual Drawer with Push-Button Combination Lock
    SBX-2004
    MSRP $2,100.00
    Small Dual Drawer with Push-Button Combination Lock
    View product

FAQs

If you would like to display Havis products in a showroom, demonstration vehicle, tradeshow display or similar area, please contact the Havis Sales Team to inquire.

Qualifying customers can test and evaluate products as part of the Test Drive Program. To submit an application to Test Drive a product, visit a product specification page and click Test this Product. After submitting your information, a Sales representative will contact you. Customers may also be interested in seeing a Havis demo vehicle in person. Check out our Find a Demo Unit page for more information.

Havis has elected to Go Green and will no longer be printing MSRP Price Booklets due to the fact that they are instantly outdated. However, our website is updated every day with the most accurate product information as well as many enhanced features. Product pricing can be found on each product specification page.

Havis has elected to Go Green and will no longer be printing catalogs due to the fact that they are instantly outdated. However, our website is updated every day with the most accurate product information as well as many enhanced features.

Electronic versions of Havis literature are available on the Havis Literature page.

Havis will provide literature to support Preferred Resellers. Please contact us, and enter your specific request under Questions/Comments.

In many cases, products are easily transferable between old and new vehicles. However, product transferability does depend on many variables including vehicle year/make/model, other equipment, etc. For more information, please contact Havis Sales Team.

Sales and Technical Support try to respond to all installation questions as quickly as possible. You should hear back within 24 hours of your request.

No, Havis does not have authorized installers nationwide. However, many Havis Resellers offer installation services and would be willing to work with you. To locate a reseller in your area, please use our interactive reseller map.

Havis does provide installation services to local customers near the Warminster, PA location. Please contact the Havis Sales Team to inquire.

Many Havis Resellers offer installation services and would be willing to work with you. To locate a reseller in your area, please use our interactive reseller map.

If you need installation help, please contact our Sales department by calling 1.800.524.9900 or by contacting us online. If Sales is unable to answer your question, they will direct you to the appropriate Technical Support representative to assist with your installation.

Product assembly varies between each specific product. Installation instructions are provided with your shipment for each product and on each product specification page online.